
$1,390,000
1,502
SQ FT
$925
SQ/FT
16700 Fountain Avenue
@ Fountain Oaks Drive - 1 - Morgan Hill / Gilroy / San Martin, Morgan Hill
- 4 Bed
- 2 Bath
- 6 Park
- 1,502 sqft
- MORGAN HILL
-
-
Wed Oct 15, 10:00 am - 12:00 pm
Send your clients...
-
Sat Oct 18, 10:00 am - 12:00 pm
Send your clients...
-
Sun Oct 19, 11:00 am - 1:00 pm
Send your clients...
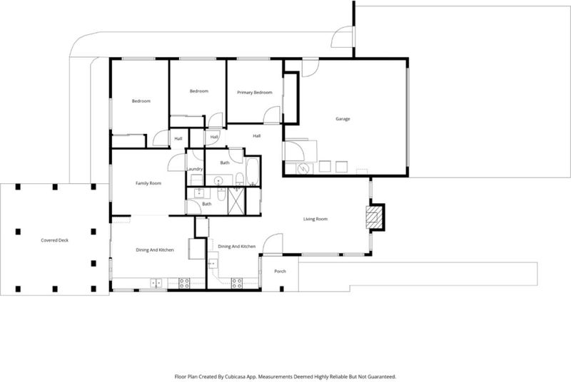
This spacious property located in the desirable Jackson Meadows community-offers a stunning 4 beds / 2 full baths single story home with 1,502 sq ft of indoor living space. This home boasts an inviting living room with warm gas fireplace as well as beautiful crown moulding throughout. Home also features a split grandparents quarters with a separate entrance as well as a separate artists studio/office with a private entrance. 2- car garage and freshly painted interior, double pained windows and a large private fenced back and side yard with fresh landscaping set on over a 6,000 square foot lot! Quiet street in a desirable neighborhood with great schools including Jackson Academy of Math and Music.
- Days on Market
- 0 days
- Current Status
- Active
- Original Price
- $1,390,000
- List Price
- $1,390,000
- On Market Date
- Oct 14, 2025
- Property Type
- Single Family Home
- Area
- 1 - Morgan Hill / Gilroy / San Martin
- Zip Code
- 95037
- MLS ID
- ML82023921
- APN
- 817-48-067
- Year Built
- 1975
- Stories in Building
- 1
- Possession
- Unavailable
- Data Source
- MLSL
- Origin MLS System
- MLSListings, Inc.
Spring Academy
Private 1-12 Religious, Coed
Students: 13 Distance: 0.3mi
Almaden Valley Christian
Private K-12 Special Education Program, Religious, Coed
Students: 71 Distance: 0.4mi
Jackson Academy Of Music And Math (Jamm)
Public K-8 Elementary
Students: 631 Distance: 0.4mi
Nordstrom Elementary School
Public K-5 Elementary
Students: 614 Distance: 0.8mi
Voices College-Bound Language Academy At Morgan Hill
Charter K-8
Students: 247 Distance: 0.9mi
Barrett Elementary School
Public K-5 Elementary
Students: 419 Distance: 1.3mi
- Bed
- 4
- Bath
- 2
- Parking
- 6
- Attached Garage
- SQ FT
- 1,502
- SQ FT Source
- Unavailable
- Lot SQ FT
- 6,324.0
- Lot Acres
- 0.145179 Acres
- Kitchen
- Countertop - Laminate, Dishwasher, Garbage Disposal, Hood Over Range, Oven Range - Electric
- Cooling
- Central AC
- Dining Room
- Eat in Kitchen
- Disclosures
- Flood Zone - See Report, Lead Base Disclosure, Natural Hazard Disclosure
- Family Room
- Separate Family Room
- Flooring
- Laminate
- Foundation
- Concrete Perimeter and Slab
- Fire Place
- Living Room, Wood Burning
- Heating
- Central Forced Air
- Laundry
- In Garage, Washer / Dryer
- Fee
- Unavailable
MLS and other Information regarding properties for sale as shown in Theo have been obtained from various sources such as sellers, public records, agents and other third parties. This information may relate to the condition of the property, permitted or unpermitted uses, zoning, square footage, lot size/acreage or other matters affecting value or desirability. Unless otherwise indicated in writing, neither brokers, agents nor Theo have verified, or will verify, such information. If any such information is important to buyer in determining whether to buy, the price to pay or intended use of the property, buyer is urged to conduct their own investigation with qualified professionals, satisfy themselves with respect to that information, and to rely solely on the results of that investigation.
School data provided by GreatSchools. School service boundaries are intended to be used as reference only. To verify enrollment eligibility for a property, contact the school directly.